太秦八反田町

《新築一戸建て 3区画分譲地》



京都市北区紫野西藤ノ森1

閑静な住環境を兼ね備えた太秦エリア。3WAYアクセス可能な立地。

太秦エリアの閑静な住宅街に分譲地が誕生しました。

通勤・通学にも便利で、生活施設も身近に揃う暮らしやすいロケーション。

前道広々約5.6m、小学校徒歩圏内の安心な立地です。

太秦なのに30坪越えのゆとりある敷地で、自由設計にて理想のお住まいはいかがでしょうか。



☆ZEH水準住宅☆



 充実設備の3区画新築分譲です。


間取りや仕様が自由に変更可能な

準注文住宅です。


売主につき、仲介手数料不要!!

京都市北区紫野西藤ノ森 区画図
京都市北区紫野西藤ノ森 1号地

1号地

土地価格:2,643万円 建物価格:1,837万円

土地面積 121.20㎡(約36.66坪)

建物面積 約92.34㎡(約27.93坪)

土地建物セット価格4,480万円

京都市北区紫野西藤ノ森 1号地

2号地

土地価格:2,543万円 建物価格:1,837万円

土地面積 108.35㎡(約32.77坪)

建物面積 約92.34㎡(約27.93坪)

土地建物セット価格4,380万円

京都市北区紫野西藤ノ森 1号地

3号地

土地価格:2,543万円 建物価格:1,837万円

土地面積 108.44㎡(約32.80坪)

建物面積 約92.34㎡(約27.93坪)

土地建物セット価格4,380万円

<分譲地概要>

所在地:京都市右京区太秦八反田町


交通:

JR山陰本線『太秦』駅徒歩約13分

地下鉄東西線『太秦天神川』駅徒歩約18分

京福嵐山本線『帷子ノ辻』駅徒歩約10分


区画数:建築条件付売土地販売3区画

    【2区画割や2区画分購入、建築条件外しの相談可能】


完成時期:順次


用途地域:第1種中高層住居専用地域・15m第1種高度地区・準防火地域他


建ぺい率:60%


容積率:200%


構造:木造2階建


現況:更地


接道:幅員約5.6mの東側道路(私道)


設備:関西電力・公共上下水道・都市ガス


小学校:南太秦小学校(徒歩約5分)


中学校:太秦中学校(徒歩約8分)


備考:※別途 水道負担金50万円(税込)・外構費用50万円(税込)・建築確認申請代金100万円(税込)

   ※ZEH水準住宅


取引態様:売主


物件担当者:栗本 雄真


最終更新日:2026年4月7日


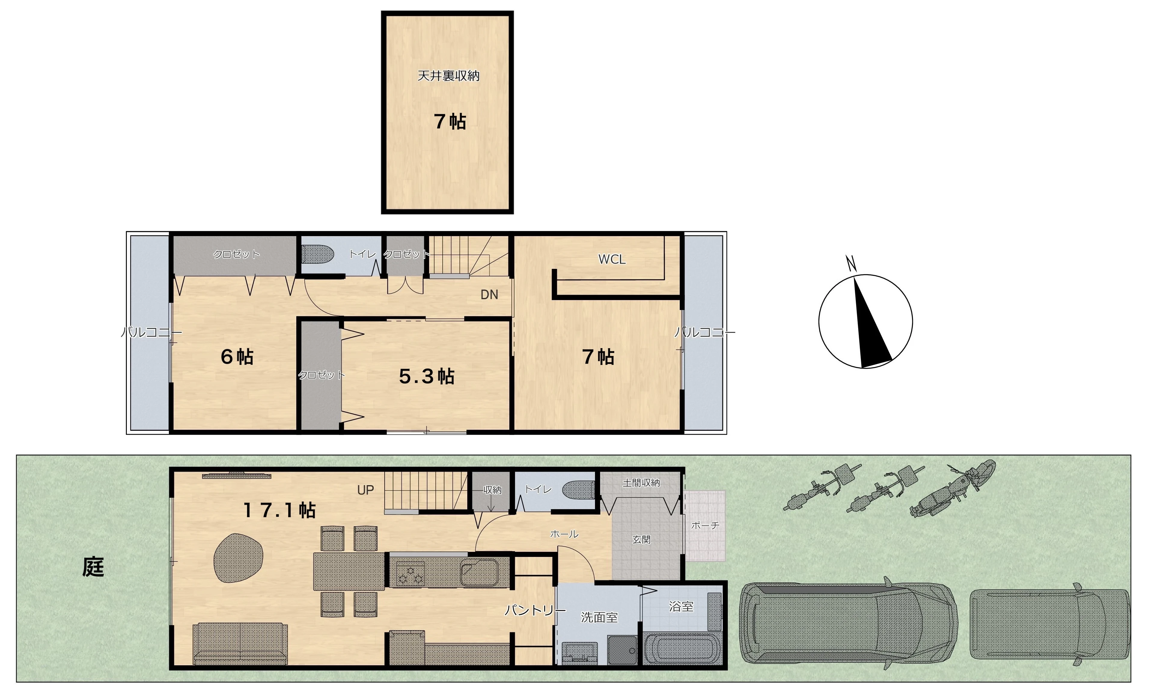
※掲載の間取り図は略図に付、多少の相違はご了承下さい。



充実の住宅設備



充実の住環境

《スーパー》

スーパーフレスコ 太秦店

徒歩8分

新鮮激安市場!太秦店

徒歩8分

《コンビニ・薬局》

ローソン 太秦荒木町店

徒歩9分

ファミリーマート 太秦小学校前店

徒歩10分

セブンイレブン 京都梅津店

徒歩9分

スギドラッグ 太秦店

徒歩7分

《幼稚園・保育園》

蜂ケ岡けやき保育園

徒歩4分

蜂ケ岡保育園

徒歩6分

《小学校・中学校》

南太秦小学校

徒歩5分

太秦中学校

徒歩8分

《その他》

広隆寺

徒歩12分

太秦映画村

徒歩17分

京都民医連中央病院

徒歩4分

Copyright 2025 ケイ・エイ・コーポレーション