大宮薬師山東町

《新築一戸建て 3区画分譲地》


京都市北区紫野西藤ノ森1

落ち着いた街並みと豊かな自然に包まれたエリア。

京都の静域に、理想の一邸を。

閑静な住宅街が広がる大宮エリアに位置し、穏やかな暮らしを求める方には最適なロケーション。

周辺には生活利便施設も整い、日々の暮らしをしっかりサポート。

高台になっているので、山や京都タワーが見えます。

北区の土地40坪越えのゆとりある敷地で、自由設計にて理想のお住まいはいかがでしょうか。



☆ZEH水準住宅☆



 3区画の新築分譲です。

《最終2区画》

間取りや仕様が自由に変更可能な

準注文住宅です。


売主につき、仲介手数料不要!!

京都市北区紫野西藤ノ森 区画図
京都市北区紫野西藤ノ森 1号地

1号地

京都市北区紫野西藤ノ森 1号地

2号地

土地価格:2,642万円 建物価格:1,738万円

土地面積 138.82㎡(約41.99坪)

建物面積 約95.98㎡(約29.03坪)

土地建物セット価格4,380万円

京都市北区紫野西藤ノ森 1号地

3号地

土地価格:2,777万円 建物価格:1,903万円

土地面積 185.39㎡(約56.08坪)

建物面積 約105.30㎡(約31.85坪)

土地建物セット価格4,680万円

京都市北区紫野西藤ノ森 1号地

3号地(別プラン)

土地価格:2,777万円 建物価格:1,853万円

土地面積 185.39㎡(約56.08坪)

建物面積 約102.87㎡(約31.12坪)

土地建物セット価格4,630万円

<分譲地概要>

所在地:京都市北区大宮薬師山東町


交通:

地下鉄烏丸線『北大路』駅徒歩約30分

市バス『山ノ前町』停徒歩約4分


区画数:建築条件付売土地販売3区画(最終2区画)

    【建築条件外しの相談可】


完成時期:順次


用途地域:第1種低層住居専用地域・10m高度地区・法22条区域他


建ぺい率:50%


容積率:80%


構造:木造2階建


現況:更地


接道:幅員約4mの東側道路(公道)


設備:関西電力・公共上下水道・都市ガス


小学校:大宮小学校(徒歩約13分)


中学校:西賀茂中学校(徒歩約27分)


備考:※別途 水道負担金50万円(税込)・外構費用50万円(税込)・建築確認申請代金100万円(税込)

   ※ZEH水準住宅


取引態様:売主


物件担当者:栗本 雄真


最終更新日:2026年4月7日


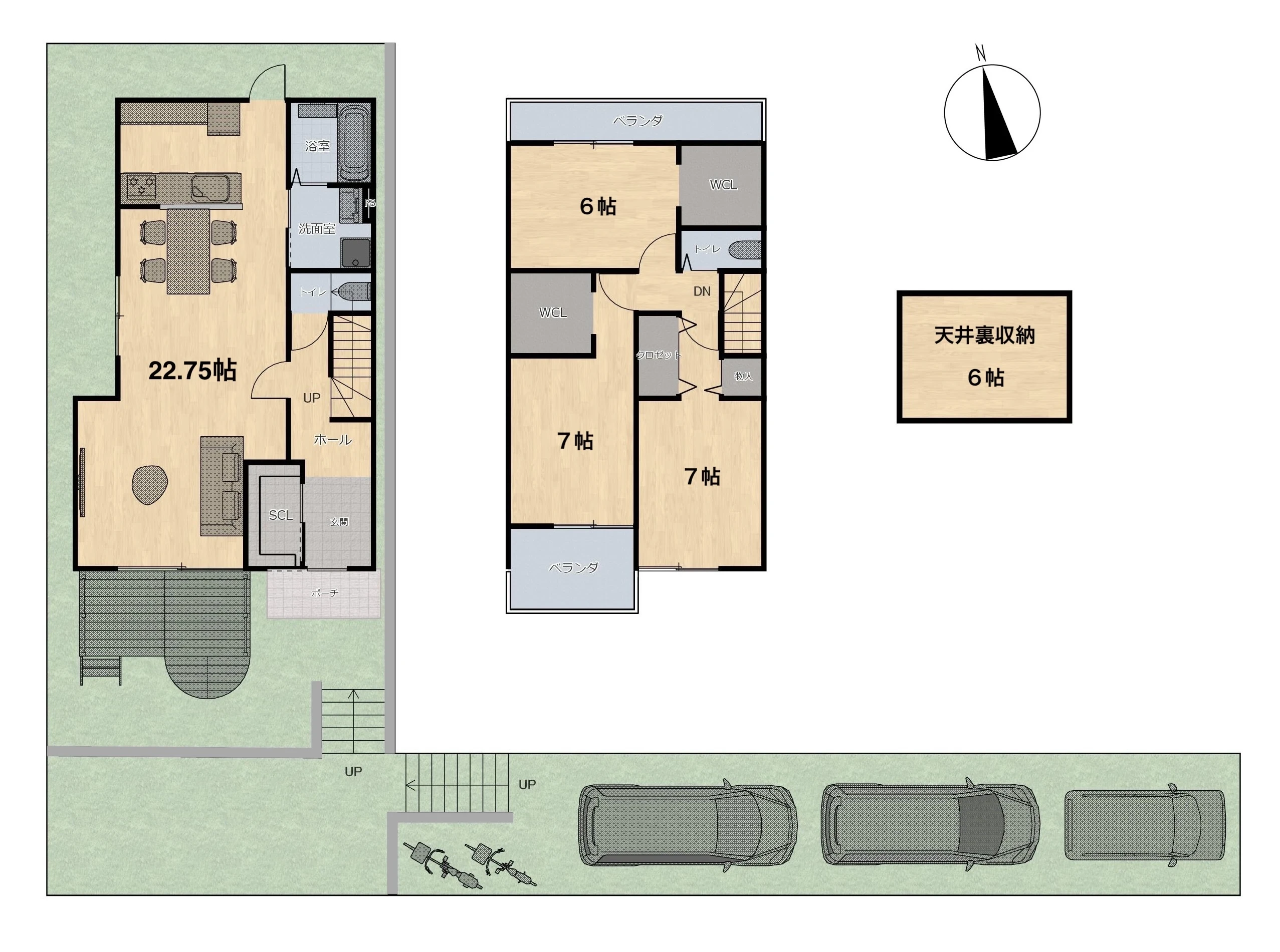
※掲載の間取り図は略図に付、多少の相違はご了承下さい。



充実の住宅設備



充実の住環境

《スーパー》

業務スーパー 北山店

徒歩3分

スーパーマツモト北山店

徒歩8分

サンディ紫竹店

徒歩9分

《コンビニ・薬局》

セブンイレブン 大宮北箱ノ井町店

徒歩3分

ミニストップ 大宮南山ノ前店

徒歩6分

ローソン 大宮西小野堀町店

徒歩6分

スギ薬局 柴竹西通店

徒歩4分

《幼稚園・保育園》

小規模保育所さくらんぼKIDS

徒歩13分

錦綾幼稚園

徒歩15分

《小学校・中学校》

大宮小学校

徒歩12分

西賀茂中学校

徒歩27分

《その他》

大宮交通公園

徒歩7分

なかたにキッズクリニック

徒歩12分

浅野耳鼻咽喉科クリニック

徒歩9分

Copyright 2025 ケイ・エイ・コーポレーション